Studio mAAb

Vue extérieure. Extension en bois d'une maison individuelle.

Extension en bois d’une maison individuelle à Rennes

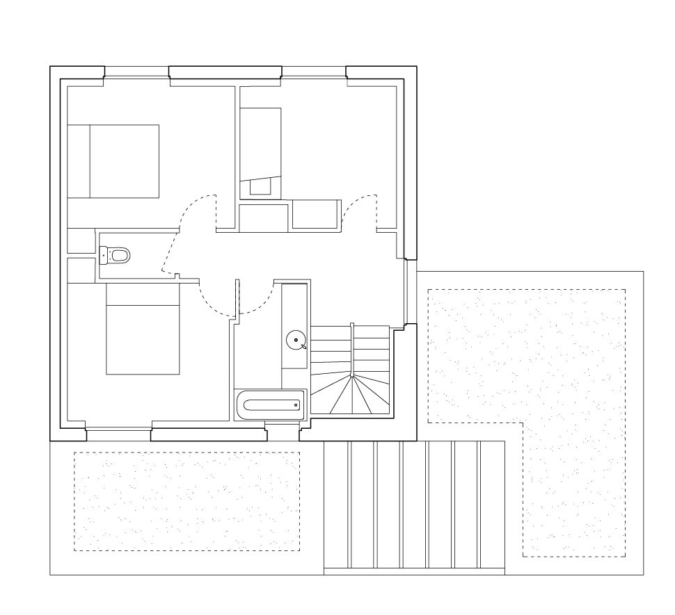
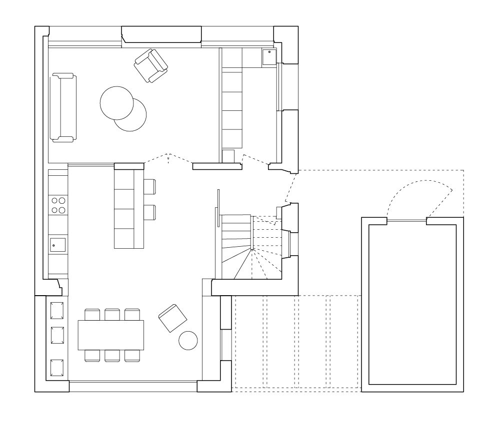
L’extension se trouve au rez-de-chaussée, et dans la continuité de la maison existante. Le volume créé se distingue très nettement de la maison d’origine, par sa matérialité et sa volumétrie. Ce dernier s’enroule autour de la maison existante et permet de recréer une connexion directe avec le jardin. Le volume est en ossature bois, isolé en fibre de bois, et bardé de bois en pose verticale. La toiture est végétalisée. Les matériaux sobres et naturels employés participent à la bonne intégration du projet dans son contexte.

Localisation/ Rennes

Mission / Complète

Commande / Privée

État / Livré

Année / 2021

Images / ©Cyril Folliot

Vue intérieure. Extension en bois d'une maison individuelle.
Vue intérieure. Extension en bois d'une maison individuelle.
Vue extérieure. Extension en bois d'une maison individuelle.
Vue intérieure. Extension en bois d'une maison individuelle.
Vue extérieure. Extension en bois d'une maison individuelle.
PLANCHES GRAPHIQUES_A2101 01
PLANCHES GRAPHIQUES_A2101 03
PLANCHES GRAPHIQUES_A2101 02
PLANCHES GRAPHIQUES_A2101 04
Photo ancienne de la maison existante. Extension en bois d'une maison individuelle.